Positioned in a sought-after location, within walking distance to Port Kembla beach, schools, shops, public transport and only a short drive to Warrawong Plaza and approximately 10 minute's drive to Wollongong CBD.
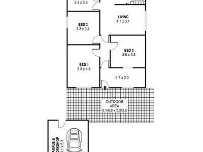
The property features three generous sized bedrooms, updated kitchen with plenty of cupboard space, separate living area with reverse cycle air conditioning, main bathroom and internal laundry, large back yard and a detached single garage with workshop.
With an opportunity to redevelop (STCA) as it provides a near level 531m2 block with a 12.7m frontage, R2 zoning and dual street access.
Features:
• Three generous sized bedrooms
• Updated kitchen with plenty of cupboard space
• Separate living area with reverse cycle air conditioning
• Main bathroom and internal laundry
• Large backyard
• Detached single garage plus workshop
• Block size 531m2, 12.7m frontage
• Opportunity to redevelop with dual street access (STCA)



























